81902 UK Doc M Confezione per bagno unisex
Available
81902 UK Doc M Confezione per bagno unisex - Raso spazzolato ...è stato ordinato al fornitore e verrà spedito non appena sarà di nuovo disponibile.
Non è stato possibile caricare la disponibilità per il ritiro
Pacchetto maniglioni per bagni unisex conformi a Doc M. Le robuste maniglie di sostegno in acciaio inossidabile Tipo 304 soddisfano i requisiti del Documento M
Il pacchetto include:
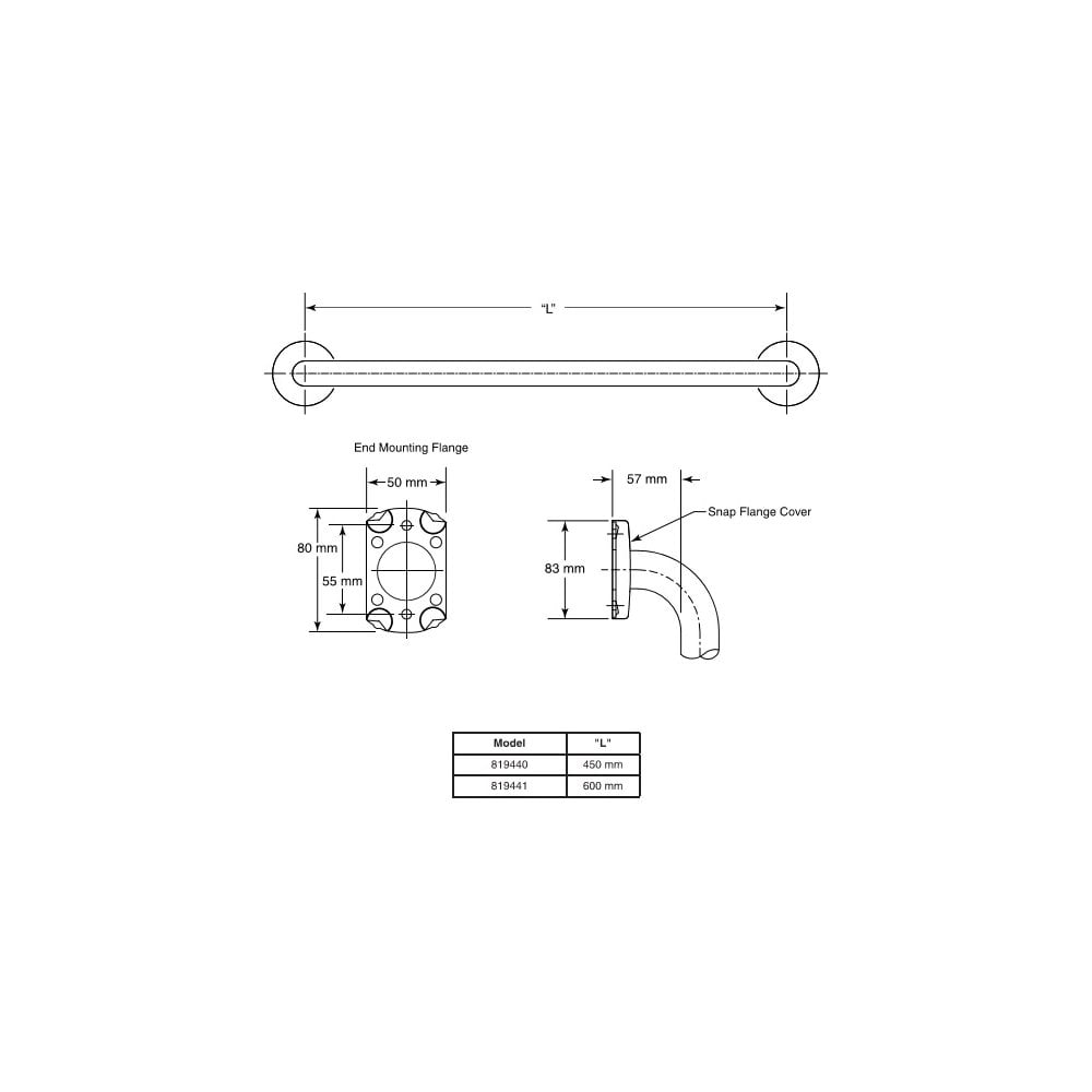
- Maniglia diritta 4 x 600 mm (819441)
- 1 maniglia diritta da 450 mm (819440)
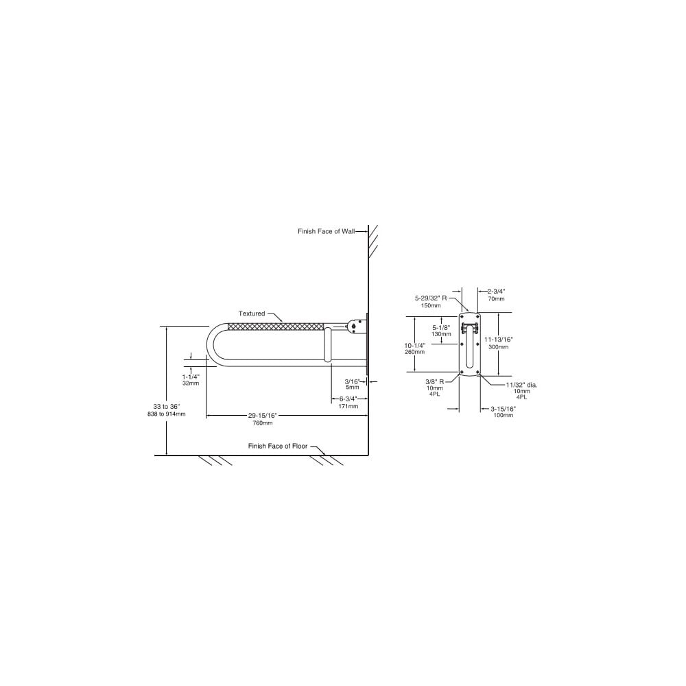
- 1 maniglia a discesa 125-Swing-Up (125-SWING-UP)
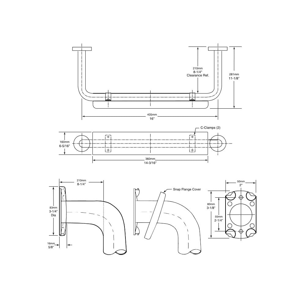
- 1 x maniglia con schienale imbottito (B-5892)
Maniglioni dritti
- Resistenza al peso: 113Kg (250 libbre)
- Diametro barra: Ø 32mm
- Distanza tra barra e parete: 57 mm
Maniglione a discesa
- Dimensioni totali: 300 mm x 100 mm x 760 mm
- Resistenza al peso: 227Kg (500 libbre)
- Diametro barra: Ø 32mm
- Con superficie strutturata sulla barra superiore
Maniglione con schienale imbottito
- Dimensioni dello schienale: 160 (A) x 360 (L) x 40 (P) mm
- Diametro barra: Ø 30 mm
- Distanza dal muro: 210 mm
I bulloni e le viti di montaggio non sono forniti: vedere la sezione "Consigliamo" di seguito per i fissaggi adeguati
Per ulteriori informazioni, consultare la scheda tecnica nella sezione download di seguito
Descrizione
Descrizione
Il pacchetto B-81902 con maniglie è progettato per bagni unisex accessibili in sedia a rotelle nel Regno Unito e in Irlanda, dove la toilette è accanto a un muro. I quattro maniglioni in acciaio inossidabile da 600 mm con diametro di 32 mm e distanza dalla parete di 57 mm sono pensati per ciascun lato superiore del lavabo (2 verticali), un lato della toilette (1 orizzontale) e la parete dello schienale dietro la toilette (1 verticale). Per l'altro lato della toilette, la guida ribaltabile con sporgenza di 760 mm aiuterà la mobilità essendo facilmente ripiegabile su e giù, fornendo una presa extra grazie alla barra superiore strutturata e resistendo a un peso fino a 227 Kg. Lo schienale imbottito con montaggio nascosto contribuirà a una seduta più stabile e confortevole. La maniglia da 450 mm può essere montata orizzontalmente sulla parte interna della porta.
Tutti questi maniglioni sono realizzati in acciaio inossidabile di lunga durata con finitura satinata spazzolata resistente e sono dotati di flange che nascondono i fissaggi (eccetto il binario ribaltabile). Si prega di notare che le barre diritte non sono dotate delle viti necessarie; possiamo fornire tali articoli separati insieme a questo pacchetto. Vedi "Consigliamo" di seguito



